Interior
10 Best 1200 Sq Ft House Plans As Per Vastu Shastra 2023
Are you looking for a home less than McMansion but more spacious than a tiny home? Then the collection of 1200 Sqft house plans mentioned in this article offers you perfect solutions. We have presented you with various designs with cool features incorporated into them efficiently. Whether it is a 2BHK or to 3BHK, there are a variety of design plans that you can look into to help you get your dream home. Read on!
Best 1200 Sqft House Plans:
We have listed some of the best 1200 Sqft homes you can look into that can help you get ideas you can incorporate into your homes.
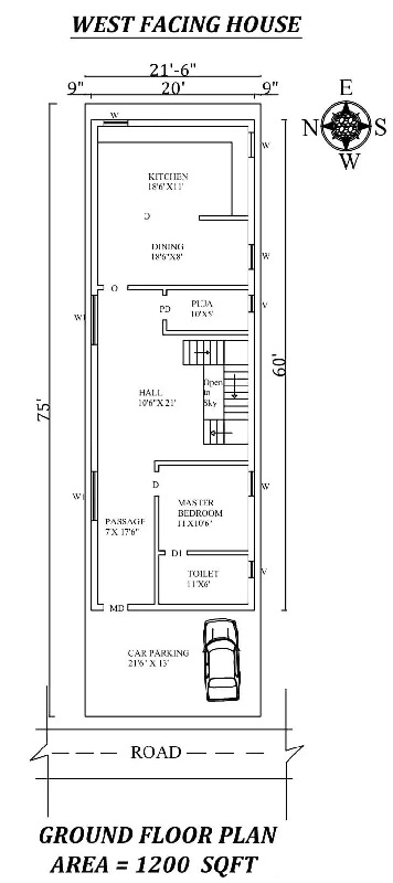
1. Single BHK 1200 Square Feet House Design:
This 1200 sqft west-facing house has a spacious car parking space in front of the house. There is a small passage from the entrance, which helps you enter into a rectangular hall. There is a pooja room in the Hall, and the stairs in the centre help you go to the open terrace. The house contains a primary bedroom with an attached bathroom near the passage. The opposite side of the house has a kitchen cum dining space.
2. 1200 Square Feet Twin House Plan:
This is a 1200 sqft North-facing twin house plan. There is a small square hall connected to a small pooja room. One side of the Hall has a kitchen cum dining area, whereas the other end is a primary bedroom with an attached bathroom. Because it is a twin house plan, the project’s other half is precisely similar to the one on the left side. There is a staircase outside the house which has a shared toilet underneath.
3. 1200 Sq Ft House Plans with 2 Bedrooms:
This is an East-facing 1200 sqft house plan. A small pathway is outside the house, connected to a rectangular hall or living space. The living room also has a pooja room and is connected to the kitchen. There is one primary bedroom with an attached bathroom and another kid’s bedroom beside the pooja room. The stairs outside the house help you enter the terrace with a shared toilet underneath.
[See More: 700 Square Feet House Plans]
4. Single Bedroom 1200 Square Feet House Plan:
This is a fantastic north-facing one bhk. A big entrance is connected to a spacious L-shaped hall and is further connected to a small pooja room. It also has a kitchen with a dining area attached to it. The primary bedroom comes with an attached bathroom beside the pooja room. There are stairs outside the house with a shared bathroom underneath.
5. Spacious 37 X 32 Feet 2 BHK House Plan:
This is a 2bhk house plan with 1200 sqft of total build-up area. The house has a beautiful garden on all sides, connected to a rectangular living room and a small family room. The kitchen is beside the living room and has a store room. There are two bedrooms with attached bathrooms. The house also has a shared toilet in the family room.
6. Excellent Indian Style 1200 Sqft House Plans:
This is a 1200 sq ft house plan with a garden. The house has a spacious living room with a pooja room in the corner. The kitchen and the dining space are attached to each other. There are also two bedrooms where the primary bedroom has an attached toilet, and the kid’s bedroom can access the shared bathroom. This Indian-style home is ventilated very well.
[See More: 800 Sq Ft House Plans]
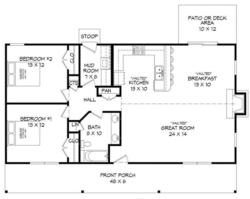
7. Modern 1200 Sq Ft House Plans:
This is an excellent 1200-square feet house design that has a big front porch. You can enter the great room connected to a kitchen and dining area. There is a small hall in the centre of the house with a mud room on one side and a bathroom on the other. The house has two bedrooms, and one has an attached bathroom. The dining area has a door from which you can access the deck area.
8. 1200 Square Feet Home Design with Two BHK:
This 2 bhk 1200 sqft home has a big covered porch which helps you enter the spacious living room. There is a kitchen cum dining area beside the living room. There are two bedrooms which both have attached bathrooms. The smaller bedroom has a door which gives you access to the patio at the back of the house. The house is spacious and is appropriately ventilated.
9. Unique 1200 Sq Ft House Plans:
This is a 1200 sqft 3 bhk. The house’s entrance gives you entry into a spacious square-shaped living room connected to the dining area through a small lane. The dining area has a door that provides you with a balcony. There is also a kitchen beside the dining area. There are three bedrooms in the house, out of which two have attached bathrooms. The kitchen also has a door which helps you access the wash wide. The primary bedroom also has a small balcony.
[See More: 900 Sq Ft House Plans]
10. 1200 Sq Ft House Plan Indian Design:
This is a 1200 sqft house plan with a small sit-out area that gives you entry into a beautiful drawing room or the sitting area. The small bedroom, dining area, kitchen and work area come in a single line, one beside another. There is also a primary bedroom which has a connected bathroom. There is also a shared bathroom opposite the work area.
Everyone has dreams and expectations when it comes to owning a home. This is why doing proper research is essential before doing anything permanent. We hope the 1200 Sqft house plans presented in this article have helped you understand what to expect and how you can make changes to suit your needs. Don’t forget to let us know if you found this article helpful!
Frequently Asked Questions and Answers:
Q1. How many rooms can you build in a 1200 Sqft house plan?
Ans: You can build 5 rooms from a 1200 Sqft home when each room size comes to 12’*10′ = 120 sqft each.
[See More: Best 1500 Square Feet House Plans]
Q2. How big can a 1200 Sqft home be?
Ans: In a 1200 Sqft house, you can get a spacious living room, three bedrooms and two bathrooms. So without feeling cramped, there is plenty of space for a family.
Q3. What is the approximate cost to build a 1200 Sqft house?
Ans: Including the building material, labour cost and the place, building a 1200 Sqft house on an average might range from 14.4 lakh rupees to 18 lakhs.
-
Fashion20 hours ago9 New Designs of 3 Carat Diamond Rings in Different Shapes
-
Fashion16 hours ago15 Latest Dresses for 2 Years Girl – Cute Designs for Occasions
-
Fashion8 hours ago15 Beautiful Floor Length Dresses for Women in Fashion
-
Fashion12 hours ago15 Beautiful Designs of Black and White Skirts for Stylish Look
-
Fashion9 minutes ago15 Different Designs of Mens Kurta Pajama for Marriage
-
Fashion4 hours agoRetro Style Dresses – 15 Trending Designs for Vintage Look
