Interior
10 Best 2000 Sq Ft House Plans According To Vastu Shastra 2023
The significance of a home is always the same for everyone, irrespective of its size. This article offers several design options if you are looking for 2000 sqft house plans, though size doesn’t always matter. We all find comfort in our homes, and it is said the home is where our personality reflects. This is why people are invested in their dream houses emotionally and financially.
Therefore, it is always better to do proper research before you go out and contact a professional. This article gives you an idea of what you want and needs in a home. Read on!
10 Best 2000 Sqft House Plans:
We have presented you with the 2000 sqft house plans in different directions and design options. Let us go through them in detail.
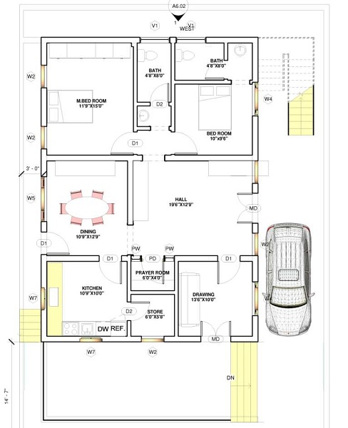
1. 40′ X 60′ 2000 Sqft 2 BHK East Facing House Plan:
This Auto CAD drawing is a 2000 sqft 2 bhk house plan with two floors. The main door enters a spacious hall, and a small prayer room is on the side of the aisle. Once you go forward from the entrance, there is a dining room, and the kitchen is towards the left. The kitchen also has a small store room to keep all the essentials. The hall also has an entrance to a drawing room with direct access to the porch outside. Two bedrooms are adjacent on the opposite side of the drawing room. There is also a separate space outside the home to park your car. You can also find a staircase that leads you to the terrace.
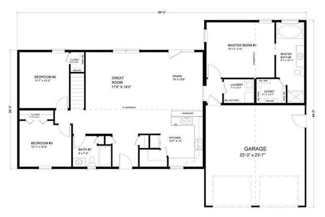
2. Three BHK House Plan In 2000 Sq Ft:
This is a three bhk house plan in 2000 sq ft with three garage spaces and open storage on the outside. This house plan has a front porch that enters the foyer and a flex space to the left, with a small closet space. You can enter the great room from the lobby, and there is a kitchen cum dining area on the left side and a separate pantry in the kitchen. There is a dedicated room for laundry to place all the washing essentials, and the primary bedroom has an attached bathroom and a walk-in closet. There are two smaller bedrooms beside the great room with a shared bathroom. The house is beautiful and well-ventilated.
3. 2000 Sqft One Story House Plan:
This single-story 1800 sqft house plan has four bedrooms and three bathrooms. The living room flows into a dining room from the main entrance, with a fireplace on one side of the hall. There is a kitchen on the left side of the kitchen and a small bedroom straight ways. However, you can enter the playroom from the kitchen and bedrooms on either side of the playroom. The primary bedroom is on the extreme right side of the house, with a large bathroom and a small space for a retreat.
4. Beautiful 4 BHK 2000 Sqft House Plan:
The four bhk 1800 sqft house plan can be a perfect choice if you want a home with plenty of room for a big family. This house has a covered porch both in the front and the back of the home. There is a living room at the entrance with a kitchen on the opposite. Two bedrooms are adjacent and opposite each other; all the bedrooms have closets, and three bedrooms have bathrooms. The additional benefit of this house is a pantry and a laundry room which can help you store many essentials.
5. 2000 Sqft 4 BHK Traditional Style House Plan:
This is an attractive mid-sized ranch that has an inviting front porch. There is an exquisite primary suite and a flexible fourth bedroom which you can double as an office room. A three-car garage with a utility sink and the additional large screened porch makes the house an attractive option. There is direct access to the deck, sitting area, walk-in closet and a full-featured bath from this exceptional primary suite. The dining room and kitchen are brightened due to the presence of the bay window. There is a functional living space on the upper level in the form of a bonus room.
[See More: Best 1600 Sq Ft House Drawings]
6. 2000 Sqft 3 BHK Ranch Floor Plan:
This is a 2000 sqft house plan with a three-car garage outside. The primary suite has a walk-in closet and a luxurious bathroom; the other two smaller bedrooms have attached toilets. The small front porch enters a small family room, and the kitchen has a running casual dining area. There is a separate laundry room where you can fold and sort clothes. Additionally, there is a different corner in the kitchen which you can dub a coffee corner, where you can sit down, relax and have a cup of coffee. Finally, the deck and screened porch on the backside can have chairs where you can spend some memorable time.
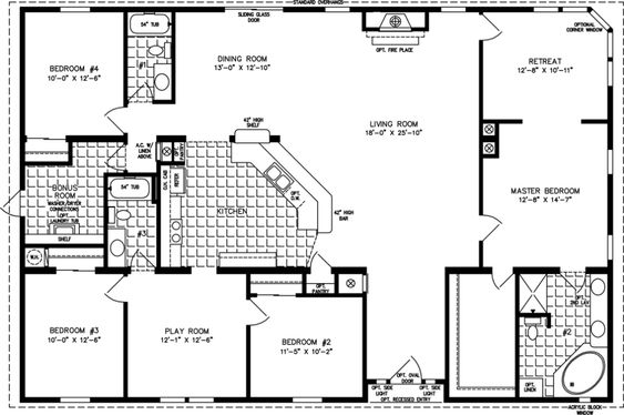
7. Four BHK House Plan in 2000 Sqft:
This is an exceptional 2000 sqft floor plan layout with great value because of its innovative features. In addition, this place feels inviting and expansive because of the 10′ ceiling. There is a walk-in closet and spacious master bath featured in the primary bedroom. The great room has a wood-burning fireplace that opens into the vaulted kitchen and dining areas. Enjoy the sunsets with your family on the covered front and rear porches.
8. 2000 Sq Ft Three BHK House Plans:
A large house with three bedrooms can be an ideal choice if you have a small family and frequent visits from family. This 2000 sqft house plan has a two-car garage on the outside and an entry into the laundry room. You can enter the small foyer area from the front porch, where you can look into the kitchen cum dining area. The primary bedroom has a luxurious bathroom and a walk-in master closet. The home also features two smaller bedrooms with a shared bathroom in between. The covered front and rear porches make the house look fabulous, especially during the evenings.
9. Luxurious 2000 Sqft 3 BHK House Plan:
This 2000 sqft house plan can be an ideal option if you want luxury. The house features three bedrooms; two are smaller, and the remaining is a primary suite with a bathroom and a closet. The great room has a vaulted ceiling that enters a kitchen cum dining room. The fourth bedroom in the house can double up as an office room, and the vaulted porch in front of the house can be beautiful anytime.
10. 2000 Sqft 3 BHK House Plan with a Garage:
This is a 2000 sq ft house plans Indian style where there is a two-vehicle garage is present outside the home, from which there is a door you can get into the laundry room. The house features a great room which has a kitchen cum dining area. A primary suite has a walk-in closet and a luxurious bathroom. The home also has two smaller bedrooms and a shared bathroom.
[See More: Best 1800 Sq Ft House Drawings]
We hope the list of 2000 sqft house plans mentioned in this article can help you understand what you want in a home. Going through these plans, you can also incorporate elements you like into the house, making it customizable per your preference. Finally, don’t forget to let us know if you found the article helpful!
Frequently Asked Questions and Answers:
Q1. How big enough is a 2000 sqft house?
Ans: A 2000 square feet house is a huge house. This type of house might include five bedrooms, a living room, a den area, a dining room and a kitchen, perfect for a large family.
Q2. Can a family of 4 live comfortably in a 2000 sqft house?
Ans: A family of four can live comfortably in an average house of 2000 sqft. However, 200-400 sqft of living space is a requirement for each person and is considered the norm.
-
Fashion20 hours ago9 New Designs of 3 Carat Diamond Rings in Different Shapes
-
Fashion16 hours ago15 Latest Dresses for 2 Years Girl – Cute Designs for Occasions
-
Fashion8 hours ago15 Beautiful Floor Length Dresses for Women in Fashion
-
Fashion12 hours ago15 Beautiful Designs of Black and White Skirts for Stylish Look
-
Fashion8 minutes ago15 Different Designs of Mens Kurta Pajama for Marriage
-
Fashion4 hours agoRetro Style Dresses – 15 Trending Designs for Vintage Look
