Interior
15 Best 3 BHK House Plans Based On Vastu Shastra 2024
Are you looking for a three-bedroom home for your family? A three-bedroom home can be the perfect size for families when they come to various arrangements. These 3 BHK house plans can offer a comfortable space for a family of five. You can also provide a separate room for kids, and you can also make one room an office space too. Adding stylish furnishings and unique layouts can make the three-bedroom house a dream home.
Before choosing, let us read this article to learn more about the 3-bedroom house plans. Read on!
Vastu Tips For 3 Bedroom House Plans:
While ensuring the correct Vastu, apartments nowadays have all the facilities to lead a luxurious life. But here are some of the Vastu tips that can help you when you are either renting or looking to buy a 3 BHK home.
- Go for a building in the shape of a square or rectangle, which increases positivity. Some structures might have cuts and extensions, leading to Vastu dosh, although most buildings come in classic shapes.
- Choose a property with large water bodies around or nearby when looking at Vastu for a 3BHK flat. It is believed that water represents the flow of life while bringing calmness.
- Choose a 3BHK apartment which is facing the East or Northeast direction. A flat in this Direction can bring good luck to the people living in the home.
- The Northeast direction is the best to have an entrance to your home. To generate positive energy inside the house, choosing the entry in the right location is essential.
- Ensure the Kitchen never faces the main door to ensure nourishment is not hampered by Vastu dosh.
- Decorate your home with the right plants as per Vastu. You can also increase positivity by choosing a house with lawns or greenery.
- Avoid 3BHK homes which have balconies in the South or West direction.
- Ensure your apartment door doesn’t face the lift because it might lead to an influx of energy.
- To check the energy flow in your 3BHK home, consider limiting the number of doors and windows.
Top 15 Three BHK House Plans:
We have presented you with a list of some of the best three BHK house plans you can consider before making a final choice.
1. 3BHK North Facing House Plan – 50’X30′:
Area: 1161 sqft.
This is a North-facing 3bhk house plan with 1161 sqft total buildup area. The Northwest direction has the Kitchen, and the house’s centre has the Hall. The primary bedroom is in the Southeast direction with an attached toilet, the west Direction has the kid’s bedroom, and the Southeast direction has the guest bedroom with an attached bathroom. The East side of the house has a staircase, and the Northeast direction has an entrance.
2. South Facing 3BHK House Plan – 50’x30′:
Area: 1500 sqft.
This South-facing 3bhk house plan has a 1500 total buildup area. The primary bedroom is in the Southwest direction with an attached toilet, the guest bedroom is in the Northwest with an attached bathroom, and the Northeast direction has the kid’s bedroom. The Kitchen is in the Southeast direction, and the East Direction has a drawing room and a shared bathroom. There is a staircase available inside the house.
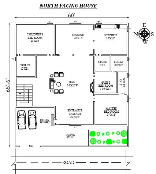
3. 3BHK North Facing House Plan – 60’X65′:
Area: 3930 sqft.
This is a north-facing 3bhk house plan where the kid’s bedroom is in the North direction with an attached toilet. There is a guest bedroom with an attached bathroom in the South, and the primary bedroom is in the South with an attached toilet. The South Direction also has the Kitchen, storeroom and Hall. The entrance is in the Northwest direction of the house.
4. Beautiful 3BHK West Facing House Plan – 50’X 41′:
Area: 2480 Sqft.
This is a west-facing 3bhk house plan in a 2480 sqft buildup area. There is a Kitchen in the Southeast direction, the East Direction has a dining area, and the Hall is in the Northwest direction. The main bedroom is in the Southwest direction, the kid’s bedroom is in the Northeast with an attached bathroom, and the guest bedroom with a shared toilet is in the West. There is a staircase in the Southwest direction outside the house.
5. South Facing 3BHK House Plan – 62’6″ X42’6″:
Area: 2656 sqft.
This South-facing 3bhk house design comes in a 2656 sqft buildup area. The Kitchen is on the Southeast side of the house, the East Direction has a dining area, and the Hall is available in the centre. The primary bedroom is in the Southwest direction with an attached toilet, the Northwest direction has a guest bedroom with an attached bathroom, and the kid’s bedroom is on the Northeast side of the house. In addition, the west Direction of the house has a drawing-room. Finally, the Southwest direction outside the house has a staircase with a shared toilet.
[See More: 1 BHK House Plans For Indian Homes]
6. 3BHK West Facing House Plan – 56’X60′:
Area: 3360 sqft.
This is a fully furnished west-facing 3bhk house plan with a 3360 sqft buildup area. There is a kitchen in the southeast, the south side has the dining area, the west Direction has a pooja room, and a hall is available in the Northeast direction. The main bedroom is in the Southwest direction with an attached toilet, the kid’s bedroom is in the West direction, and the guest bedroom is in the East Direction. There is a staircase outside of the house with a shared bathroom.
7. East-Facing 3BHK House Plan – 50′ X 60′:
Area: 2500 sqft.
This is a 3bhk east-facing house plan per Vastu with a 2500 sqft buildup area. There is a kitchen in the Northwest, the dining area is in the West direction, and a hall in the house’s East Direction. The primary bedroom with an attached toilet is in the Southwest direction, the kid’s bedroom with an attached bathroom is in the Northeast direction, and the guest room is available in the Southeast direction. There is a staircase available on the Southeast side of the house.
8. 3BHK West Facing House Plan – 60’X 65’6″:
Area: 3270 sqft.
This is a west-facing 3 bhk home design with a 3270 sqft buildup area. The Kitchen is in the Southeast direction with a storeroom near the Kitchen, the dining area is in the East Direction, and the Hall is in the Northwest direction. The primary bedroom is on the South side of the house with an attached bathroom, a kid’s bedroom is in the Northeast with an attached bathroom, and a guest bedroom with an attached toilet is on the South. Finally, the Northwest direction outside the house has a staircase with a shared bathroom in the West.
9. 3BHK South Facing House Plan – 40’X62′:
Area: 2480 sqft.
This is a home plan design of 3 bhk with 2480 sqft of buildup area. There is a kitchen in the Southeast direction, East direction has a dining area and a hall. The Southwest direction has the primary bedroom with an attached bathroom, the Northwest side has a guest bedroom, and the kid’s bedroom is in the west Direction of the house. There is a staircase in the Southwest outside the house with a shared toilet.
10. 3 BHK west-facing House Plan – 60′ X 72′:
Area: 4320 sqft.
This is a west-facing 3 bedroom house plan with car parking with a 4320 sqft of buildup area. There is a kitchen in the Southeast direction, the East Direction has a dining area, and the South Direction has a storeroom. The primary bedroom is available in the Southwest direction with an attached bathroom, the Northeast direction has a kid’s bedroom with an attached bathroom, and the North side of the house has a guest bedroom. There is a staircase in the Southwest direction outside the home, the entrance is in the West direction, and the Northwest direction has car parking.
[See More: 2 BHK House Plans For Indian Homes]
11. 3 BHK South Facing House Plan – 44’X45′:
Area: 1980 sqft.
This is a three-bhk south-facing house plan with a 1980 sqft of buildup area. The Southeast direction has a kitchen, the East side has the dining area, and the South side of the house has a hall. The Southwest direction has a primary bedroom, the Northeast direction has a guest bedroom, and the Northwest direction has the kid’s bedroom with an attached toilet. The Southwest direction outside the house has a staircase with a common bathroom.
12. Splendid 3 BHK North Facing House Plan – 68’X41′:
Area: 2813 sqft.
This is a fully furnished north-facing 3bhk house plan built-in 2813 sqft area. The Southeast direction of the house has a kitchen, a dining area near the Kitchen in the South, and a pooja room, and the northeast direction has a hall. The Southwest direction has a primary bedroom with an attached toilet, the south side has a kid’s bedroom with an attached bathroom, and the west Direction has a guest bedroom. The Northwest outside of the house has a staircase, and the Northeast direction has an entrance.
13. 3BHK South Facing House Plan – 54’X48′:
Area: 2592 sqft.
This is a South facing 3bhk house plan built-in 2592 sqft area. There is a kitchen in the Southeast direction, the east Direction has the dining area, and the South Direction has a hall. In addition, the Southwest direction of the house has a primary bedroom, the Northeast direction has a guest bedroom, and the Northwest direction has a kid’s bedroom with an attached toilet. Finally, there is a staircase on the Southwest side of the house with a shared bathroom.
14. Marvellous 3BHK North Facing House Plan – 28’X50′:
Area: 1480 sqft.
This is a North-facing 3bhk house plan with a pooja room with 1480 sqft of total buildup area. The Southeast direction has a kitchen, the East Direction has a dining area, and the South Direction has a storeroom. In addition, there is a pooja room on the South side of the house, and the Northeast direction has a hall. The Southwest direction has a primary bedroom with an attached toilet, the West direction has a kid’s bedroom with an attached bathroom, and the Northwest direction has the guest bedroom. The Northwest outside of the house has a staircase and a shared toilet. The Northeast direction of the house has an entrance.
15. 3BHK West Facing House Plan – 60’X60′:
Area: 3600 sqft.
This is a west-facing 3bhk house plan with a buildup area of 3600 sqft area. This house features three bedrooms, whereas the Southwest direction has the primary bedroom with an attached bathroom. In addition, the West side of the house has a children’s bedroom with an attached toilet, and the east side has a guest bedroom with a shared bathroom in the East. The Southeast side has a kitchen in the south Direction, the dining area, and the Northeast direction has a hall. The southwest direction outside the house has a staircase with an entrance in the Northwest and car parking towards the North.
[See More: Duplex House Plans For Indian Homes]
Advantages of a 3 BHK House Plan:
We have listed all the advantages of buying or renting a 3BHK house. First, however, let us go through them because it is a significant investment, and it is better to keep the following things in mind.
- The ample space in a 3BHK allows you to live with your loved ones without cramping up the space. It helps you blend a balance between communal living while providing privacy beautifully.
- The element of space is yet another advantage of having a 3BHK house. You can decorate your home beautifully as per your personal preference.
- It is an advantage to buy a 3BHK in the long run because everyone has an increasing family. Moreover, you can always recreate rooms as needed if you have the space.
- A 3BHK helps you give your living space an exclusiveness which is a dream for many.
- Good connectivity and the need for space have become a necessity more than a luxury. Therefore, extra space is always an advantage, especially during the pandemic were working from home was the only option.
Dos and Don’ts For 3 BHK House:
Here is the list of some of the dos and don ts you need to keep in mind while constructing or renting a 3 BHK home:
- Ensure your main entrance is not obstructed by large objects like poles, statues or trees.
- It is recommended to avoid plots which have a slop from North to South.
- A slope of the roof should be towards the East in an East-facing house.
- The North and East walls shouldn’t be thicker or higher than the South and the west walls.
- There shouldn’t be a septic tank in the Northeast in an east-facing house.
- Since the trees might block sunlight in the morning, avoid trees in the East.
- East or the Southeast is not the correct place to keep a shoe rack.
- Nurture a bamboo plant, tulsi, money plant or aloe vera for good fortune in an East-facing home.
- To boost positive energy, purify your home with mountain salt twice a week.
Suppose you are looking for a spacious home that can house all your family comfortably. In that case, a 3BHK house can be an exceptional solution. We hope the 3BHK house plans mentioned in this article will help you understand what the home looks like. We also said some tips which can help you in the choice process. Don’t forget to let us know if you found the article helpful!
Frequently Asked Questions and Answers:
Q1. As per vasthu, where should you keep the dining table in a 3 BHK?
Ans: The Northwest or the Southwest is the perfect place for a dining table. However, placing the dining table in any other area can cause financial problems and ill health. Therefore, it is advised that families’ heads should face the East while eating.
Q2. What is the meaning of a 3BHK floor plan?
Ans: A 3BHK floor plan means the house has one Hall, one Kitchen and three bedrooms.
Q3. As per Vasthu, what is the ideal water tank location in a 3 BHK east-facing house?
Ans: The North or the Northeast are ideal directions for an underground water tank. Whereas for overhead tanks, the Southwest and the West are the best directions.
-
Fashion19 hours ago9 New Designs of 3 Carat Diamond Rings in Different Shapes
-
Fashion15 hours ago15 Latest Dresses for 2 Years Girl – Cute Designs for Occasions
-
Fashion7 hours ago15 Beautiful Floor Length Dresses for Women in Fashion
-
Fashion23 hours agoStud Earrings Designs – 15 Modern and Beautiful Collection
-
Fashion11 hours ago15 Beautiful Designs of Black and White Skirts for Stylish Look
-
Fashion3 hours agoRetro Style Dresses – 15 Trending Designs for Vintage Look
