Interior
15 Best East Facing House Plans According to Vastu Shastra
Many people take Vastu consultation while constructing or buying a house. This especially holds when you plan to get an East facing home because not every Vastu is suitable for all people. As per Vastu Shastra, East-facing houses are often considered auspicious and will bring you wealth. However, East-facing homes are not ideal for everyone. Therefore it is essential to understand all the details associated with East-facing house plans to acquire a property with similar elements.
Overall, the Vastu of a house is determined by its orientation and the placement of the rooms in the house. Therefore, your home will flourish, irrespective of the directions facing if the arrangements are made following Vastu rules. Therefore, go through this article for the best East-facing house plans to look into.
What is Vastu Shastra?
A traditional science that describes the principles of ground preparation, direction, layout, measurements, space, and design of a property that originated in India is called Vastu Shastra. In Sanskrit, the words Vastu means home, and Shastra means the study of science. Many people believe when implemented correctly, an East facing house can bring happiness, luck, and success to the people living in it.
What are East Facing Houses?
If your house entrance faces towards the East direction, you are inside an East facing house. In other words, you are in an East-facing place if you are facing the east side when inside the house while walking out of the house.
Are East Facing Houses Good?
People who believe in Vastu consider East-facing houses auspicious and are blessed with luck and fortune. However, not all the East-facing homes have equally good attributes in compliance with Vastu Shastra, though most are favorable. While the crucial points include direction and orientation, the luckiest East-facing homes are the ones that are broad and are at a lower level.
15 Best East-Facing House Plan Drawings:
We present you with the list of some of the plans of East-facing homes. Then, let us go through the article for more information.
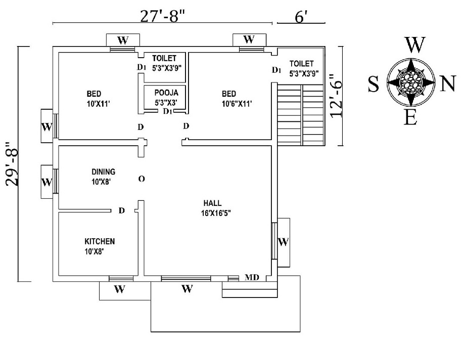
1. 27’8″ X 29’8″ East Facing House Plan:
Area: 1050 Sqft.
This is a 2 BHK East facing house plan as per Vastu Shastra in an Autocad drawing, and 1050 sqft is the total buildup area of this house. You can find the Kitchen in the southeast, dining area in the south, living area in the Northeast. The master bedroom is in the southwest, with an attached bathroom in the West.
The northeast direction has the living room, whereas the west direction has a kid’s bedroom/ drawing with an attached bathroom in the northwest. The northwest direction outside the house has a staircase, a patio on the northeast side, and a road available in the east.
2. 40′ X 60′ 2 BHK East Facing House Plan:
Area: 2000 Sqft.
This 2 BHK house plans east facing drawing depicts a place with two floors in an Autocad drawing. The southeast corner of the house has a staircase; the western-northwest area has a window. Make sure to place a movable gate in the Northeast corner of the house.
3. 37 x 30 inch Single bhk East Facing House Plan:
Area: 1110 Sqft.
This one bhk house plan with East facing Vastu has 1110 sqft and is represented in Autocad drawing. The southeast direction of the house has Kitchen, a dining area near Kitchen in the East, and the south has a utility. The southwest corner has a master bedroom with an attached bathroom in the West, and the northeast direction has a hall and staircase. There is a pooja room in the south; the northeast direction of the house has a portico.
4. 30 X 46.6 Inches BHK East Facing House Plan:
Area: 1627 Sqft.
This East facing 2bhk house plan with pooja room has a total buildup area of 1627 sqft, and the project is made as per Vastu. The southeast direction has a kitchen; the east direction has dining near the Kitchen; the northeast direction has a living area. The southwest direction has a master bedroom with an attached toilet in the West. The west direction of the house has a drawing/ kids room with a bathroom attached in the northwest. The west direction has a pooja room, the northeast direction of the house has a staircase, while the area under the stairs has a standard toilet.
5. 45’3″ X 32′ East Facing House Plan:
Area: 1448 Sqft.
This East facing 2bhk house plan is an Autocad design per Vastu with a total buildup area of 1448 sqft. The southeast direction of the house has a kitchen; the south direction has the dining area near the Kitchen. The northeast direction has a living room; the southeast direction has the master bedroom with an attached bathroom in the West. The northwest direction of this house has a kid’s bedroom/ drawing-room, and the area outside the house has a staircase in the northwest direction.
[See More: West Facing House Plans]
6. 35’9″ X 28’9″ 2 BHK East Facing House Plan:
Area: 1027 Sqft.
This is an east-facing house plan with a 1000+ sq ft total buildup area. The southeast direction of the house has the Kitchen; the south direction has the dining area near the Kitchen. The northeast direction has the living room; the southwest direction has a master bedroom with an attached toilet in the West. The east direction of the house has a kid’s bedroom/ drawing-room. In the northwest direction inside of the home, a staircase is available.
7. 36’5″ X 58’6″ 2 BHK East Facing House Plan:
Area: 1131 Sqft.
The Vastu for east facing 2BHK house presented in this Autocad drawing has a total buildup area of 1131 sqft. The southeast direction of the home has the Kitchen, and the Storeroom near the Kitchen is in the East; the south direction has a dining area near the Kitchen. The northeast direction of the house has the living room. The southwest master bedroom with an attached toilet is present—a staircase outside the home and a kid’s bedroom with a bathroom attached in the northwest direction. The area under the stairs has a standard toilet in the Northeast, and in the east direction is car parking.
8. 50′ X 60 ‘East-Facing 3BHK House Plan:
Area: 2500 Sqft.
This is an Autocad drawing of a three-bedroom house plan east facing which has a total built-up area of 2500 sqft. The west direction of the house has the dining area near the Kitchen, and the north-west direction has a kitchen, the east tip of the house has a hall, southwest direction has a master bedroom with an attached toilet. The northeast direction has a kid’s bedroom with an attached bathroom, and the southeast direction has a guest room. The southeast side of the house has a staircase available.
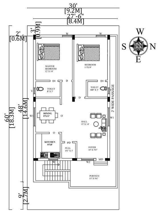
9. 27’6″ X 48′ 2 BHK East Facing House Plan:
Area: 1350 Sqft.
This 27’6″ X 48′ measuring east-facing plan per Vastu has a total buildup area of 1350 sqft. The south direction has a dining area near the Kitchen. The southeast direction has a kitchen, the northeast direction of the house has a living room, the master bedroom with an attached toilet is in the southwest, and the kids’ room with a bathroom in the northwest and east direction has a pooja room.
10. 28′ X 37″ Single East-Facing House Plan:
Area: 1036 Sqft.
This is a One BHK East facing house plan per Vastu Shastra with a 1036 sqft of total buildup area. The northeast direction of the house has a kitchen cum dining area, and the Southeast area has a hall. The northeast direction of this house has a master bedroom with an attached toilet in the East. The southeast side of the house has a staircase and portico.
[See More: North-Facing House Plans]
11. 64′ X 35″ Fully furnished 2 BHK East-Facing House Plan:
Area: 2256 Sqft.
This is a perfect example of a 2 BHK East-facing house plan per Vastu, which has two flat representations. The southeast direction of the first flat has the Kitchen, the east direction of the house has the dining area, and the northeastern direction has the living room. In addition, the southwest direction of this home has the master bedroom, and the northwest direction has a kid’s bedroom and, finally, the shared bathroom in the West.
The second flat also has the exact details except for the attached bathroom for the master bedroom in the West. Southeast outside of the house has a staircase.
12. 30′ X 56′ Double Single BHK East-Facing House Plan:
Area: 1890 Sqft.
This double single BHK East-facing house plan, as per Vastu, has 1890 sqft of total buildup area representing two flats in one drawing. The southeast direction of the first flat has the Kitchen south direction has a dining area, and the northeast direction has a hall. The Storeroom is placed in the north, southwest direction of the house has a kitchen, and the southern area has the dining space.
Whereas the southeast direction of the second flat has a kitchen, the northeast direction has a hall. The north direction has a storeroom, southwest direction has the master bedroom with an attached toilet in the northwest.
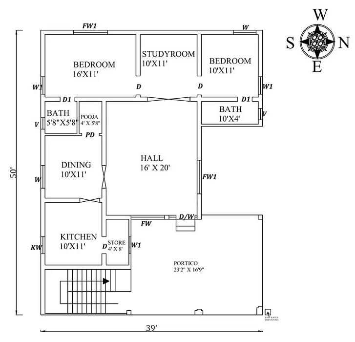
13. 39′ X 50′ 2 BHK East-Facing House Plan:
Area: 1780 Sqft.
This is yet another Autocad drawing of an east-facing Vastu plan with a 1780 sqft of total buildup area. The southeast direction of this house has a kitchen; the east direction has a storeroom near the Kitchen, and the south direction has a dining area near the Kitchen. The master bedroom with attached toilet is southwest, and the northeast direction has the living room. You can find the drawing-room in the northwest order, where north has the attached bathroom. The west approach has a study room, and the southern direction has the pooja room.
14. 54′ X 40′ 2BHK East-Facing House Plan:
Area: 2170 Sqft.
This is an Autocad drawing of a 2BHK dual east-facing house plan with 2170 sqft of total buildup area. As the name suggests, this is a representation of two flats in one drawing. The first house has a kitchen in the southeast, a dining area near the south direction, and a living space in the Northeast. The southwest direction of the house has the master bedroom with an attached toilet. North direction has kids bedroom with the bathroom in the northwest direction.
Whereas in the second flat, the southeast direction has the Kitchen, the south direction has a dining area near the Kitchen; the northeast region has the living space. In addition, the southwest has a master bedroom with an attached bathroom in the West, whereas the north has a kid’s bedroom.
15. 40′ X 48′ 2 BHK East-Facing Home:
Area: 1930 Sqft.
This East facing Vastu plan of 2BHK is done per Vastu and has a total of 1930 sqft of total buildup area. The east direction has a dining area near the kitchen, whereas the southeast direction has the Kitchen. The northeast direction has a living space; the south direction has a storeroom; the north direction of the house has a pooja room. In addition, there is the availability of a staircase in the northwest and east direction outside of the house has car parking.
[See More: Best South Facing House Plans]
Vastu Tips For East-Facing Homes:
Here are a few tips and tricks you can be incorporated into your East-facing homes to make them more favorable. Below are some tips you can follow:
- To measure the accurate east direction of the plot, use a magnetic compass.
- The Northeast zone of the space is the perfect place to have a pooja room in an East-facing house.
- South or West is the best direction to have a staircase.
- For ultimate result, as per Vastu norms, living rooms should be in the northeast direction in an East-facing house.
- For optimum Vastu compliance, A master bedroom should have a southwest direction.
- The northwest direction is ideal for the master bedroom.
- The Northwest or Southeast direction of the house is the perfect place for the Kitchen.
- The open spaces should be in the house’s east direction, such as balconies, open atriums, and vestibules for good ventilation and positive vibes.
Do’s and Don’ts for East-Facing House:
Here is the list of some do’s and don’t’s you need to keep in mind for an East-facing house.
- Compared to the walls in the South and West, the walls in the north and east directions should be slightly shorter and thinner.
- Avoid planting trees in the East since they block morning sunlight that is valuable and positive.
- It is good if you have a plot that slopes from south to north.
- The northeast corner shouldn’t have bedrooms, toilets, and septic tanks.
- The northern side of the house should have more open spaces.
- If the door is in the east direction, a wooden nameplate is suitable.
- The southern and western sides of the plot should have a higher boundary wall.
- If there is land attached in the South or west direction of the East-facing house, avoid buying the property.
- Avoid placing a shoe rack in the East or South-east direction.
- Ensure that the slope of the roof is towards the East when designing an East-facing house.
- To boost energetic vibes, purify the home with mountain salt twice a week.
We hope the other East-facing house plans mentioned in this article will help you visualize what you want in a house and the advantages of choosing a home in this direction. Go through all the details which will help you make a sound decision. Don’t forget to let us know if you found this article helpful!
Frequently Asked Questions and Answers:
Q1. What is the Vastu in the East-Facing House for the Pooja Room?
Ans: The pooja room should be in the northeast direction for an east-facing home, according to Vastu guidelines. Compared to the other rooms, the ceiling of the pooja room should be lower. Make sure the bathroom is not adjacent to the pooja room.
Q2. Which Plants are Suitable for East-Facing Homes?
Ans: The plants that grow well in East-facing homes are:
- Lucky bamboo plant.
- Neem plant.
- Holy basil plant.
- Money plant.
- Chrysanthemum.
- Citrus plant.
- Banana plant.
- Plum blossoms.
- Daffodils.
- Aloe vera.
- Lotus.
- Citrus plant.
Q3. What is the Ideal Location of a Water Tank in an East-Facing House?
Ans: The north or the Northeast are ideal for an underground water tank; you can also choose east or north-east directions. Southwest or West is the best direction for overhead water tanks.
Image Sources: 1
-
Fashion22 hours ago9 New Designs of 3 Carat Diamond Rings in Different Shapes
-
Fashion18 hours ago15 Latest Dresses for 2 Years Girl – Cute Designs for Occasions
-
Fashion10 hours ago15 Beautiful Floor Length Dresses for Women in Fashion
-
Fashion14 hours ago15 Beautiful Designs of Black and White Skirts for Stylish Look
-
Fashion2 hours ago15 Different Designs of Mens Kurta Pajama for Marriage
-
Fashion6 hours agoRetro Style Dresses – 15 Trending Designs for Vintage Look
