Interior
15 Best North-Facing House Plans As Per Vastu 2024
Are you looking to invest in a house that gives you prosperity and wealth? If yes, choosing a home compliant with Vastucan be a perfect answer. When selecting the right Direction for a home, a north-facing house Vastu plan is the most favoured. A North-facing house plan is considered auspicious because Kubera, the God of wealth, dominates the North. But it would help if you made specific changes to eliminate negative energies from this Direction for the North Direction to be ultimately beneficial. Read on to learn more about the North-facing house plans and how to make them the most rewarding.
What is Vastu Shastra?
Vastu Shastra is a traditional science that originated in India and describes the principles of ground preparation, property design, space, measurements, layout, and Direction. Vastu means Home, and Shastra implies the study of science in Sanskrit. Therefore, people living in a North-facing home can succeed, have luck, and be happy when Vastu is implemented correctly.
What are North Facing Houses?
A house whose main entrance is towards the north is called a north-facing house. This is because the position of the main door determines the Direction of the house, not if there is a road on the north side, as many people believe.
Is North Facing House Good?
Many believe that one Direction is good while the others are bad. However, according to Vastu Shastra, all directions can be good if you adhere to some principles. For example, a north-facing house benefits people who are running their businesses or getting involved in financial services because Kubera, the God of wealth, rules this direction.
However, it is essential to consider the Vastu principles of a north-facing house plan before buying or constructing one.
15 North-Facing House Plans:
Explore 15 top North-facing house plans for 2024, designed according to Vastu Shastra principles for harmony, prosperity, and well-being in your home.
1. 28’3″x 39’10” North Facing 2BHK House Plan:
Area: 1040 sqft.
This north-facing house, Vastu’s plan, has a total buildup area of 1040 sqft. The southwest direction of the house has a main bedroom with an attached toilet in the South. The northwest Direction of the house has a children’s bedroom with an attached bathroom in the same Direction. The southeast Direction has the kitchen with the dining room in the east, the storeroom in the West and the northeast direction has a hall and entrance. The south Direction has a puja room, and a staircase is available in the west Direction.
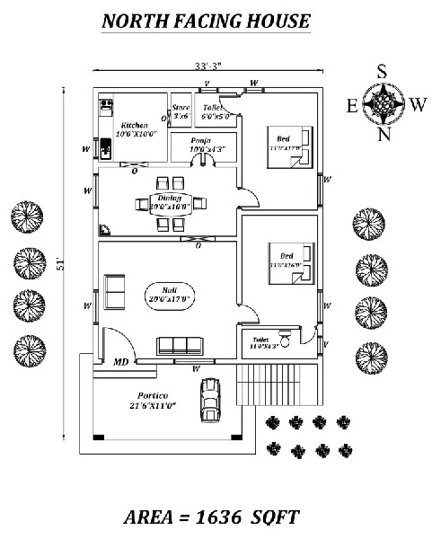
2. 33’x51′North Facing 2BHK House Plan:
Area: 1636 sqft.
This north-facing 2bhk house plan has a total buildup area of 1636 sqft. It has a two-bedroom, where the southwest direction has a primary bedroom with an attached toilet in the South. The west Direction of the house has a children’s bedroom with an attached bathroom in the northwest. The Southeast direction of the house has a kitchen with a storeroom nearby, and the East Direction has a dining room. The northeast direction has a hall and an entrance, whereas the northwest Direction has a staircase.
3. 34’x 40’7″ North Facing 2BHK House Plan:
Area: 1040 sqft.
This is a North facing house plan with a total buildup area of 1040 sqft. The Southwest direction of the house has a primary bedroom with an attached toilet in the West. The northwest Direction has a children’s bedroom. There is a kitchen in the Southwest direction, and the south Direction has a dining room. The house’s southwest Direction has a utility and balcony, and the northeast direction has a hall. The northwest Direction outside the house has a staircase.
4. 30’X39′ North Facing 2BHK House Plan:
Area: 1010 sqft.
As per Vastu Shastra, this north-facing 2bhk house plan has a total buildup area of 1010 sqft. The Southwest direction of the house has a main bedroom, and the northwest Direction has a children’s bedroom. The kitchen is in the southeast Direction, and the northeast direction of the house has a hall and an entrance. The northwest Direction outside of the house has a staircase.
5. 30’X39′ North Facing 2BHK House Plan:
Area: 1520 sqft.
This north-facing house design is per Vastu with a total buildup area of 1520 sqft. The South Direction of the house has the main bedroom with an attached toilet in the southwest. The children’s bedroom with an attached bathroom is in the South Direction. There is a kitchen in the south Direction with a dining room in the east and a utility in the southeast. The northeast direction of the hose has a hall and entrance; the northwest Direction has a puja room. The house’s northwest Direction outside has a staircase.
See More: Best East Facing House Plans
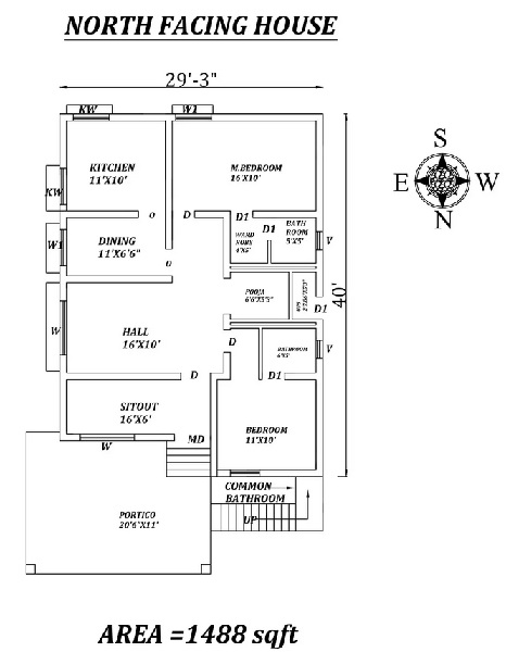
6. 29’X40′ North Facing 2BHK House Plan:
Area: 1488 sqft.
This is a north-facing 2bhk house plan with an entire building of 1488 sqft. The southwest direction of the house has a main bedroom with an attached toilet in the West. The children’s bedroom is in the northwest, with an attached bathroom in the West. The southeast Direction of the house has a kitchen, the east Direction has a dining room, the northeast direction has a hall and entrance. There is a puja room in the west Direction of the house, and the northwest Direction of the house has a staircase.
7. 64’X22’6″ Amazing North Facing 2BHK House Plan:
Area: 1450 sqft.
This is a north-facing 2bhk house plan per Vastu with a buildup area of 1450 sqft. The southwest direction of the house has a main bedroom with an attached toilet in the south Direction. In addition, the south Direction of the house has a children’s bedroom with an attached bathroom. The kitchen is in the southeast direction, the dining room is in the northeast, and the storeroom is in the south direction. The centre of the house has a hall with a puja room on the south side of the house. There is an entrance in the northwest, and the south Direction inside the house has a staircase.
8. 33’3″X 48’9″ North Facing 2BHK House Plan:
Area: 1400 sqft.
This is an excellent north-facing 2bhk house plan with a buildup area of 1400 sqft. The southwest direction of the house has a primary bedroom with an attached toilet in the West. The children’s bedroom is in the northwest, and the attached bathroom is in the West. There is a kitchen in the southeast, a dining room in the east, a Hall and an entrance in the Northeast. There is a puja room in the west Direction with a staircase available outside the house in the northwest.
9. 28’3″ X 48′ North Facing 2BHK House Plan:
Area: 1300 sqft.
This is a north-facing 2bhk house plan per Vastu with a buildup area of 1300 sqft. The main bedroom is in the southwest, and the attached toilet is in the west. The children’s bedroom is in the northwest, with the attached bathroom in the west Direction. The kitchen is in the southeast direction, the dining room is in the east, and the South has a storeroom. The northeast direction has a hall and entrance, and a puja room is available in the south. The northwest Direction outside of the house has a staircase.
10. 46’6″ X 27’3″ Single BHK North-Facing House Plan (Dual):
Area: 1267 sqft.
This is a single bhk north-facing dual house plan per Vastu with a 1267 sqft area. The first flat has a kitchen in the southeast, the Northeast side has a hall, and the southwest side has a primary bedroom with an attached toilet in the northwest. There is a puja room in the West.
The second flat has the southeast kitchen and Hall in the northeast direction. In the southwest, a primary bedroom with an attached toilet is in the northwest. Finally, there is a puja room in the west Direction.
The centre and outside of the house have a staircase. The North Direction of the house has an entrance.
See More: Best West Facing House Plans
11. 71’9″ X 17’6″ Single BHK North Facing House Plan (Twin):
Area: 1200 sqft.
This is a single bhk north-facing twin house plan with a total buildup area of 1200 sqft.
The first flat has a kitchen in the southeast, a dining area in the Northeast near the kitchen, and a hall in the northwest Direction. The southwest direction of the house has the main bedroom; a pooja room is present in the South.
The second flat has a kitchen in the southeast; the dining area is in the Northeast near the kitchen with a hall in the northwest. The southwest direction of the house has the primary bedroom. There is a puja room in the South, and the southeast outside of the house has a staircase. The place under the stairs has a shared toilet.
12. 50’X30′ 3BHK North Facing House Plan:
Area: 1161 sqft.
This is a splendid 3bhk north-facing house plan with a total built-up area of 1161 sqft. The kitchen is in the northwest, and the Hall is in the house’s centre. The southeast Direction of the house has the primary bedroom with an attached bathroom in the West. There is a kid’s bedroom in the West, a guest bedroom in the southeast, and an attached toilet in the South. There is a staircase on the house’s east side with an entrance in the house’s Northeast.
13. 27’X40′ North Facing G+1 House Plan:
Area: 1800 sqft.
This is an excellent north-facing G+1 house plan per Vastu with an 1800s ft total buildup. The ground floor has two bedrooms, and the kitchen is in the southeast direction. There is a dining area in the east near the kitchen and a hall in the northeast. The southwest direction of the house has a primary bedroom with an attached bathroom in the West. Finally, the northwest Direction of the ground floor has a kid’s bedroom.
The building’s first floor has a hall in the Northeast, a primary bedroom in the southwest, and an attached toilet in the West. The west Direction of the first floor has a kid’s and guest bedrooms in the southeast.
The east Direction has a shared toilet, the northeast direction inside the house has a staircase, and the north Direction has a road.
14. 35’6″x 20’3″ North Facing House Plan – Single BHK:
Area: 663 sqft.
This is a single bhk north-facing house plan per Vastu with 663 sqft of buildup area. The southeast Direction has the kitchen, while the southeast Direction has a dining area near the kitchen. The Northeast side of the house has a living space, and the main bedroom is in the northwest. There is a staircase in the northwest Direction outside the house with a staircase and a shared toilet under the stairs. The northeast direction of the house has a portico.
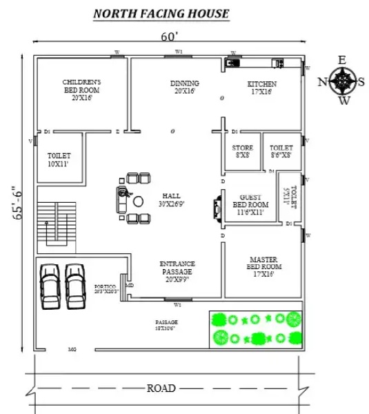
15. 60X65 Feet 3BHK North Facing House Plan:
Area: 3930 sqft.
This spacious north-facing 3bhk house plan has a 3930 sqft buildup area. The North Direction has a kid’s bedroom with an attached toilet. In contrast, the south Direction has a guest bedroom with an attached bathroom. The kitchen, storeroom, Hall, and main bedroom with an attached toilet are in the South Direction. There is a staircase inside the house, and the northwest Direction of the house has a portico.
See More: Best South Facing House Plans
#Vastu Tips For North-Facing Homes:
Here are some tips you can incorporate into the North facing house plans that will improve the favorability of the home:
- The giant doors in a north-facing house must be the main doors made of wood.
- You can prevent the negative energy from entering the house by placing a doormat.
- Keep a tidy and clean house.
- According to the north-facing house Vastu, you can create new opportunities by placing a money plant in the North Direction.
- As per Vastu, the best plant species for a north-facing house are aglaonema, ferns, bromeliads, and hedera.
- The North or South corners of the house must have wastewater outlets.
- The northeast, northwest, or East directions are the best for underground water sources like storage tanks or borewells.
Dos and Don’ts for North-Facing House:
Here is a list of things to consider when choosing a North-facing home.
- Avoid placing the bathroom, kitchen and bedroom in the Northeast.
- The main door of the house’s entrance shouldn’t be in the sixth pada.
- The Southeast or South corner of your house shouldn’t have mirrors.
- Restrict yourself from using black countertops in the kitchen, though it might look good.
- Avoid using yellow or red paint colour for the exterior of the north-facing house.
Overview:
In conclusion, choosing a North-facing house plan that follows Vastu Shastra can bring positive energy, peace, and happiness to your home. By carefully selecting the right design, you can create a space where everyone feels comfortable and prosperous. Remember, a well-designed home can make a big difference in your life, helping you and your family enjoy a brighter future in 2024 and beyond.
#Frequently Asked Questions:
Q1. Which colours are best suited for North-facing homes?
Ans: The colours suitable for a north-facing home are tones and warm shades of khaki, cream, white, grey, green, and warm blue.
Q2. Which plants are suitable for houses facing North?
Ans: According to Vastu, the following plants boost positivity and bring prosperity to North-facing house plans. They are:
- Araucaria.
- Aglaonema.
- Bromeliads.
- Begonia rex.
- Chlorophytum.
- Ferns.
- Hedera.
Q3. What kind of nameplate is ideal for a north-facing house?
Ans: A metal nameplate is ideal for the main door in a north-facing home.
-
Fashion22 hours ago9 New Designs of 3 Carat Diamond Rings in Different Shapes
-
Fashion18 hours ago15 Latest Dresses for 2 Years Girl – Cute Designs for Occasions
-
Fashion10 hours ago15 Beautiful Floor Length Dresses for Women in Fashion
-
Fashion14 hours ago15 Beautiful Designs of Black and White Skirts for Stylish Look
-
Fashion2 hours ago15 Different Designs of Mens Kurta Pajama for Marriage
-
Fashion6 hours agoRetro Style Dresses – 15 Trending Designs for Vintage Look
